Everyone is stressed out with appearances whether it is fashion, décor, or being the best at being environmentally friendly. Vying to be number one at anything, competition seems to be at the top of the list.
Take this as a challenge. The economy has hit everyone hard, but it has not stopped people from wanting to be at the top of fashion or have the décor that is envied. This is where creativity becomes a best friend.
Find ways to be unique in with your décor while not spending a fortune.
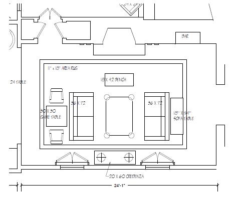
- Lay out your proposed floor plan of your space.
- Place your furniture and furnishingsin your plan. (Trick 1: Make copies of the empty plan to use as a basis to play with sketching different furniture plans. Trick 2: cut out furniture, scaled to match plan, to play around on your floor plan until you have your desired furniture plan)

For further assistance you can have a consultation with an interior designer.
Great custom decorating details are built-in cabinetry.
These are cabinets, whether a bar, media center or china cabinet, that are custom fitted and made to be installed permanently in a specific space or niche. Built-ins are normally pricey so when on a budget they are not an often décor consideration.
Want a built-in look without the custom price?
- Transform a closet into a built-in cabinet yourself. Take the door and trim molding off. Purchase a unit (like the Billy Bookcasefrom IKEA) that will fit into the space. Make it flush with the wall. Finish the edges off with decorative molding stained or painted to match your new cabinet. Now you have an Interior Design custom piece without the custom price.

built-in created using an existing closet space with a shelving unit inserted and molding applied.
Be proud when visitors complement your new décor. You are now number one when it comes to achieving a new custom designer décor without it costing you the designer prices.
Life is a constant challenge, never be afraid to dance!
show me your support and subscribe to this blog, sign in under email subscription at the top of the column on the blog’s right side.
Read and subscribe to my Interior Design and Interior Decorating articles written for Examiner.com


Thank you for the support on my newly formed blog. 🙂
blog is too good and its helpful for readers really nice blog…
thank you!