The most common mistake people do is to buy furniture that they love thinking that they will be able to place the pieces in the room once they are delivered. You cannot wait to see your new purchases in your space. The delivery truck pulls up. You know exactly where you want to place the furniture only to find that when it is in your room nothing fits the way you anticipated. The sofa is huge or only one chair will fit where you thought you could place two. The Dining Room is too small for the table you chose or the Bedroom set is too large for your Bedroom.
Before you step out of your abode to go shopping you must do a little homework. First take a look in magazines or online to get some ideas. This can be fun and you can get some good ideas. After you have some thoughts on how you would like to furnish your room you will want a floor plan. This will assure you that the items will fit in your room and show you the best way to lay out your furniture. You will also know exactly what size pieces to purchase and be able to place them perfectly when delivered.
If you are uncertain about doing a floor plan yourself you may want to hire a professional to do this. You do not have to spend a fortune on an Interior Designer. There are services on-line that you can contact. Companies such as, weberlifedesign.com, will take your room measurements, and for a nominal fee, do floor plans for you complete with all furniture and accessory sizes. You can then take these plans right to the store and know exactly what size sofa or table to buy.
If you are creative you may enjoy the challenge and fun of laying out your own floor plans.
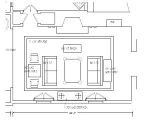
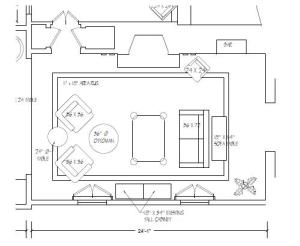
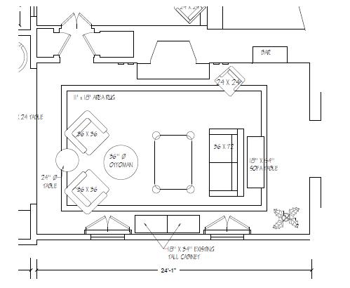
You will need graph paper, a tape measure, and pencil. Do a rough drawing of your room. This does not have to be to scale (it is for measurement purposes only). Draw in about where any doors, windows, columns, and fireplace may go. Measure the length and width of your room. Then measure the placement of any doors, windows, columns, and fireplace. Begin at one corner and work your way around the room; measure from one corner to inside door, then the door width, then from door to inside window, then the window width, and so on until you have made your way around the room. Draw your room perimeter to scale onto the graph paper. One quarter-inch square will equal one foot. You can estimate inches. Now you will draw in your doors, windows, etc. Placing everything to scale on the paper the same way you measured them in the room.
Take your plan and make some copies on your printer. Now you have a few plans to play with. Decide what you would like. Do you want a sofa and loveseat, or a sectional? Try a couple of chairs instead. Where you thought of having one large sitting area you might want to break it up into two. You will be able to see exactly what size bedroom pieces will fit and if you can fit in the chaise that you really want.
Make sure you are placing the furniture in to scale. If you know of a piece you like already, and were thinking about purchasing, scale it into your room to see if it will fit. If you are not sure what you want, be aware of some standard sizes you can work with. Sofas can range from 78” to 108”. A standard sofa size is 36” x 90”. A standard loveseat is 36” x 60”. Upholstered chairs are usually around 36” x 36” give, or take. Barrel/ swivel chairs can be found at 30” x 30” and up. Small wood frame chairs can be 24” x 24”. A standard desk is 30” x 60”. Sites like stanleyfurniture.comare great to find bedroom furniture, as well as living room and dining room tables, and case goods. It will also tell you the retail prices and where you can buy.

Now that you have your floor plans you should have an easier time shopping. You will be in control of your furnishing destiny. The sales people will have to listen to you. Your shopping is complete. As the delivery truck pulls up you are confidant in knowing exactly where everything will be placed. You smile as everything falls into place just as it did on paper and say to yourself “never be afraid to dance”.
Be sure to show me your support and subscribe to this blog, sign in under email subscription at the top of the column on the blog’s right side. I promise you will have fun following me.
Enjoy and subscribe to my articles at the examiner http://www.examiner.com/interior-design-32-in-new-york/carol-ruth-weber



I agree 100%